Комплектные распределительные устройства наружной установки. Цены на КРУН, которые мы сами производим.
?Быстрый вопрос в компанию Электропринцип. Мы перезвоним вам в ближайшее время.
Защита от автоматических сообщений
CAPTCHA
Введите слово на картинке*

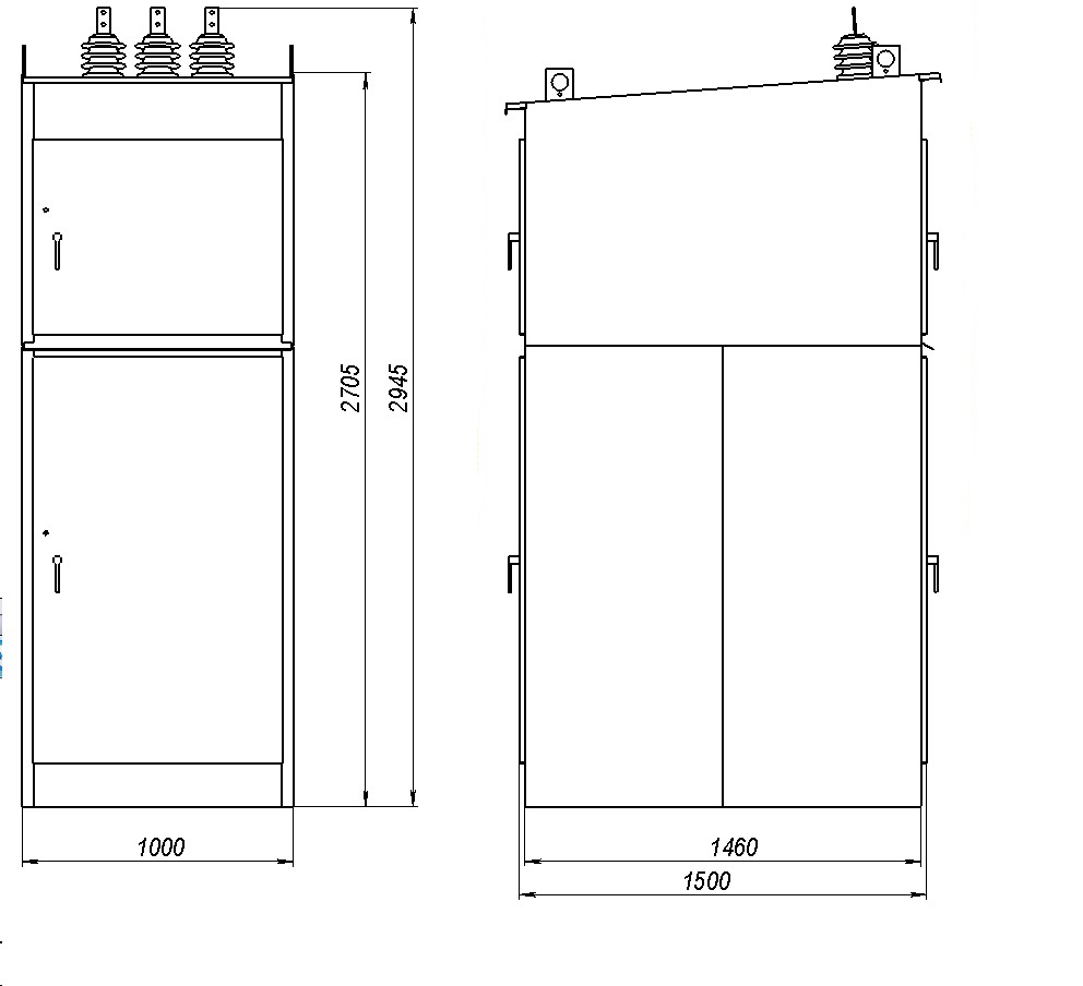
КРУН 20кВ. Комплектное распределительное устройство наружной установки

КРУН 20кВ. Комплектное распределительное устройство наружной установки

ООО «АртЭнерго» является производителем высоковольтного оборудования и предлагает профильным предприятиям и организациям поставки КРУН.

Назначение и применение

Комплектные распределительные устройства наружной установки КРУН предназначены для приема, распределения, учёта и защиты электроэнергии трёхфазного переменного тока, частотой 50 и 60 Гц, напряжением 20 кВ.

Комплектные распределительные устройства наружной установки КРУН предназначены для комплектации и расширения комплектных трансформаторных подстанций 20 кВ, распределительных устройств 20 кВ.

Данное оборудование позволяет расширять возможности действующих объектов по вводу и распределению электроэнергии без существенных капиталовложений в строительство. В состав КРУН входят различные типы исполнения шкафов, отличающиеся друг от друга конструкцией, назначением и применяемой аппаратурой, в зависимости от установленных коммутационных аппаратов и номеров схем главных цепей.

Отличительной особенностью КРУН является полная или частичная локализация силовых отсеков между собой, локализация отсека релейной защиты и автоматики (низковольтного отсека), что обеспечивает обслуживание отсека релейной защиты и автоматики без отключения высокого напряжения секции шин. КРУН являются изделиями с двухсторонним обслуживанием, с высокой степенью защиты – IP54.

Конструкция

Конструктивно КРУН представляет собой сборно-сварную металлическую конструкцию. Внутренний модуль КРУН, внутри которого располагается высоковольтный отсек, отсек релейной защиты и автоматики выполнен из оцинкованной стали с помощью разъёмных (болтовых) и неразъёмных (клёпаных) соединений. Внутренний модуль крепится к внешней сборно-сварной оболочке при помощи болтовых соединений, что в свою очередь позволяет сократить сроки производства, производить быструю замену модуля главных цепей при необходимости. Двери расположены на противоположных сторонах шкафа (по две с каждой стороны), что позволяет осуществлять его двухстороннее обслуживание, которое обеспечивает свободный доступ к аппаратуре.

Дверные конструкции снабжены специальными уплотнениями и замками, обеспечивающими надежную защиту аппаратуры от влаги и пыли. Шкафы могут быть оборудованы электронагревательными элементами для создания внутри температуры необходимой для нормальной работы оборудования. Обогрев включается автоматически от термореле. Для наблюдения за высоковольтными аппаратами на внутренних дверях силовых отсеков имеются смотровые окна.

В высоковольтных отсеках размещаются вакуумный выключатель, трансформаторы напряжения, предохранители и трансформаторы тока, в зависимости от схемы главных цепей и конструктива ячейки. В кабельном отсеке находятся кабельные присоединения, трансформатор собственных нужд, трансформаторы тока нулевой последовательности, линейный разъединитель, ограничители перенапряжений и трансформатор напряжения. КРУН имеют возможность концевой разделки и присоединения до четырех трехфазных кабелей различного сечения.

Отсек релейный представляет собой аппаратуру вспомогательных цепей, установленную на двери отсека. В релейном (низковольтном) отсеке размещаются аппараты управления, защиты, сигнализации и учета электроэнергии. Все подлежащие заземлению аппараты внутри КРУН заземлены, двери заземлены гибким проводом. Для присоединения элементов, подлежащих временному заземлению, в нижней части фасадов имеется точка под заземление.

Комплект поставки

Комплектные распределительные устройства наружной установки КРУН в количестве и в номенклатуре согласно опросному листу. В комплект поставки камер КРУН, осуществляемой по опросным листам, входят:

  • сборные шины в количестве согласно опросному листу;  
  • электрические схемы главных и вспомогательных цепей;  
  • эксплуатационная документация и паспорта на комплектующую аппаратуру;  
  • руководство по эксплуатации КРУН;  
  • сертификат соответствия;
  • паспорт на комплект КРУН;  
  • комплект ключей для замков дверей  

Эксплуатационные документы поставляются в одном экземпляре.

Обратная связь