Электрооборудование ПВАИ
?Быстрый вопрос в компанию Электропринцип. Мы перезвоним вам в ближайшее время.
Защита от автоматических сообщений
CAPTCHA
Введите слово на картинке*

ПВАИ

ПВАИ

ПВАИ производства ЭП

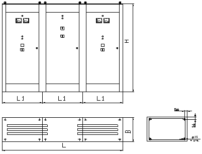
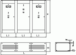
ПВАИ, ПВАИ-2, ПВАИ-3 панели ввода автоматического резерва

ПВАИ, ПВАИ-2, ПВАИ-3 шкафы на два и три ввода. Напряжение до 1 кВ. Номиналом до 1000А. Применяются на площадках добычи нефти и газа.

ПВАИ, ПВАИ-2, ПВАИ-3 состоят из нескольких панелей (вводные, секционные и торцевые).

ПВАИ используются внутри помещений и установок. Не предназначены для взрывоопасной среды. 

Разработанны типовые схемы ПВАИ, ПВАИ-2, ПВАИ-3 на российском оборудовании, и его зарубежных аналогах. 

Для повышения безопасности в панелях ПВАИ, ПВАИ-2, ПВАИ-3 применены защитные пластроны и частичное секционирование.
ПВАИ, ПВАИ-2, ПВАИ-3 производятся степенью защиты до IP-54.
ПВАИ, ПВАИ-2, ПВАИ-3 изготовляются одностороннего и двухстороннего обслуживания. Возможно подключение токопровода.

Цена ПВАИ, ПВАИ-2, ПВАИ-3 определяется по схеме или опросному листу. Опросный лист ПВАИ, ПВАИ-2, ПВАИ-3 можно получить обратившись к сотрудникам ООО "ЭП"

Габарит ПВАИ, ПВАИ-2, ПВАИ-3

Размеры ПВАИ, ПВАИ-2, ПВАИ-3 2200*800*600 мм. 2200*800*800 мм. 2200*800*600 мм.

Масса ПВАИ, ПВАИ-2, ПВАИ-3 не более 700 кг. Вес 2200*800*600 мм определяется после изготовления.

Принципиальные схемы ПВАИ, ПВАИ-2, ПВАИ-3 предоставляются по запросу

Обратная связь