Электрооборудование ШАВР
?Быстрый вопрос в компанию Электропринцип. Мы перезвоним вам в ближайшее время.
Защита от автоматических сообщений
CAPTCHA
Введите слово на картинке*

ШАВР

ШАВР

Шкаф автоматического включения резервного питания типа ШАВР

Назначение ШАВР.

ШАВР (автоматический ввод резерва) используются для возобновления энергоснабжения посредством задействования резервного источника питания (при авврии соответственно).
Шкафы ШАВР применяются на предприятиях и объектах первой и второй категории.

Шкафы ШАВР выполняют следующие функции:

  • Контроль наличия напряжения основного и резервного ввода.
  • Автоматическое включение резервного ввода.
  • Сравнение параметров напряжения основного и резервного ввода.
  • Востонавление питание с основного ввода после нормализации параметров.
  • Ручное отключение основного и (или) резервного ввода.
  • Визуализация параметров (лампочки, амперметры).
  • Учет электроэнергии
  • Защиту от тепловой перегрузки и токов КЗ.
  • Телеметрия и телемеханика.

Цена ШАВР зависит от выбора функций и комплектации. Опросный лист ШАВР можно получить по запросу или заполнить с нашими сотрудниками. Описание ШАВР, схемы ШАВР, фото ШАВР можно также получить у сотрудников "ЭП"

Условия работы:

  • температура 51o С до +45o С;
  • влажность воздуха до 80%;
  • высота над уровнем моря до 2000 м.

Шкаф ШАВР производятся строго по ГОСТ

Основные технические характеристики:

напряжение 380В, частота 50Гц, номинал 1250А,  время срабатывания не более 1,0 сек, исполнение УХЛ4.

Основные типы шкафов ШАВР: ШАВР-32, ШАВР-40, ШАВР-63, ШАВР-80, ШАВР-100, ШАВР-160, 

ШАВР-250, ШАВР-320, ШАВР-400, ШАВР-630, ШАВР-800, ШАВР-1000, ШАВР-1250,ШАВР-1600.

Габарит ШАВР зависит от номинала и количества вводов.

Вес ШАВР до 130 кг. масса ШАВР может изменяться в зависимости от марки и завода изготовителя применяемых комплектующих.


Функциональная схема ШАВР содержит два ввода — основной и резервный,  схему управления и нагрузку. 

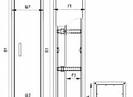
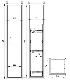
Конструкция ШАВР.

Конструктив шкафа ШАВР производится нескольких типов: навесной и напольный. В зависимости от номинала и пожеланий заказчика. 
Шкаф ШАВР представляет карскас из гнутых профилей и уголков. Устройство ШАВР позволяет свободно обслуживать и ремонтировать оборудование. 
ШАВР изготовлдяется одностороннего обслуживания. Эксплуатируется и перевозится в вертикальном положении.
На фасаде ШАВР располагаются:

  • контроллер и индикаторы состояния контакторов;
  • амперметры и вольтметры с переключателями;
  • узлы учета и мультиметры.

Комплектация ШАВР возможна на любом оборудовании, как на отечественном так и на импортном (АВВ, LOVATO, Schneider Electric, Siemens и т.д.)

Заказ ШАВР:

  • предоставить заявку на фирменном бланке;
  • прислать ОЛ или принципиальную схему ШАВР;
  • подписать договор и оплатить счет;
  • принять и получить ШАВР.

Купить ШАВР можно позвонив по любому телефону указанному в разделе контакты. 

В комплект поставки ШАВР входит:

Шкаф ШАВР, ключи от замков, техпаспорт ШАВР, сертификат ШАВР, инструкция по монтажу и эксплуатации.

Доставка ШАВР

  • Осуществляется собственным автотранспортом.

При выборе заказчика транспортной компании доставка ШАВР до ТК производится бесплатно.

  • Транспортировка должна осуществляться в закрытой машине в вертикальном положении..

Упаковка ШАВР производится в картон и стрейч пленку.

Обратная связь