Электрооборудование ШОТ и ЯОТ
?Быстрый вопрос в компанию Электропринцип. Мы перезвоним вам в ближайшее время.
Защита от автоматических сообщений
CAPTCHA
Введите слово на картинке*

ШОТ и ЯОТ

ШОТ и ЯОТ

ШОТ и ЯОТ производства компании ЭП

ШОТ и ЯОТ шкафы и ящики обогрева оборудования нефтегазовой промышленности.

НКУ ШОТ и ЯОТ является типовым оборудованием. Применяются для обогрева трубопроводов и водостоков. Входят в комплект блоков обогрева серии БМОЛ, БМОВ.

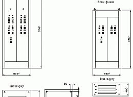
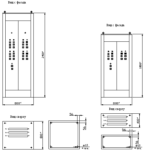
Технические характеристики ШОТ и ЯОТ

Габарит ШОТ и ЯОТ в-2400, 2200, 2000, 1800 мм. ш-800, 600 мм. г-800, 600, 400 м. Размер ШОТ и ЯОТ определяется по техническим параметрам проекта.

ШОТ и ЯОТ производятся открытого исполнения (защита Ip=20). Номинал ШОТ и ЯОТ до 250А. напряжение 0,4 кВ. 

Конструктив ШОТ и ЯОТ

ШОТ и ЯОТ реализуются в виде модульной конструкции, которая дает возможность демонтажа блоков без оключения основного питания. Подключение шлейфом дает возможность независимой работы отдельных блок-модулей. ШОТ и ЯОТ  в типовом исполнении состоит из воодного автоматического выключателя номиналом 25А и шести линейных автоматов номиналом не более 10А.

На фасадной части ШОТ и ЯОТ монтируются блоки управления БМ9500.

При использовании панелей с блоками АВР глубина ШОТ и ЯОТ составляет 600 мм.

Отличия ШОТ и ЯОТ

Я — шкаф обогрева водостоков;
Ш — шкаф обогрева трубопроводов;

Номенклатура типовых разработок приведена ниже

ШОТ–8164–63/10—СН, ШОТ–8164–160/25—СН, ШОТ–8168–100/10—СН, ШОТ–8168–250/25—СН, ШОТ–8354–63/10—СН, ШОТ–8364–160/25—СН, ШОТ–8358–100/10—СН, ЯОТ–8366–63/10.

Заказ ШОТ и ЯОТ

Купить ШОТ и ЯОТ можно прислав заявку с опросным листом. Цена ШОТ и ЯОТ подготавливается в течении двух рабочих дней.

Обратная связь