Электрооборудование 2БКТП-Э с КТПВ и НКУ
?Быстрый вопрос в компанию Электропринцип. Мы перезвоним вам в ближайшее время.
Защита от автоматических сообщений
CAPTCHA
Введите слово на картинке*

2БКТП-Э с КТПВ и НКУ

2БКТП-Э с КТПВ и НКУ

2БКТП-Э с КТПВ с НКУ производства "ЭП"

2БКТП-Э с КТПВ с НКУ используются для электроснабжения линейных потребителей газонефтяной отрасли.

2БКТП-Э с КТПВ с НКУ могут также использоваться на объектах мощностью до 1000кВа.

2БКТП-Э с КТПВ с НКУ

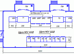
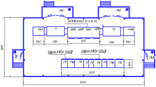
Блочно-модульная подстанция с силовой сборкой (аналог внутрицеховой) типа КТПВ и станцией управления типа НКУ. 2БКТП-Э с КТПВ с НКУ сотоит из нескольких блоков: ОСТ, измерительный отсек и силовой отсек. Млщность до 1000 кВа, напряжение 10 кВ, огнестойкость третьей степени. Температура работы до минус 60 С.

Конструкция 2БКТП-Э с КТПВ с НКУ

2БКТП-Э это блок-бокс с размещенным электрооборудованием. Блок-бокс реализуется на базе унифицированных контейнеров.

Описание 2БКТП-Э с КТПВ с НКУ можно получить у сотрудников "ЭП". Габарит 2БКТП-Э с КТПВ с НКУ зависит от мощности СТ и количества панелей КТПВ и НКУ. Заказать 2БКТП-Э с КТПВ с НКУ можно прислав нам опросный лист или схему на данное устройство. Цена 2БКТП-Э с КТПВ с НКУ зависит от ряда факторов и постоянно изменяется.

Производство 2БКТП-Э с КТПВ с НКУ выпускает несколько типовых комплектаций 2БКТП-Э с КТПВ с НКУ-250, 2БКТП-Э с КТПВ с НКУ-400, 2БКТП-Э с КТПВ с НКУ-630, 2БКТП-Э с КТПВ с НКУ-1000.

2БКТП-Э с КТПВ с НКУ могут комплектоваться комплектующими как отечественных производителей так импортных.

Доставка 2БКТП-Э с КТПВ с НКУ возможна любым из доступных видов транспорта, не нарушая условий перевозок на нем.
Обратная связь