Электрооборудование КТП с КУ 63-400 кВ
?Быстрый вопрос в компанию Электропринцип. Мы перезвоним вам в ближайшее время.
Защита от автоматических сообщений
CAPTCHA
Введите слово на картинке*

КТП с КУ 63-400 кВ

КТП с КУ 63-400 кВ

КТП с КУ производства компании "ЭП" г. Сердобск

К сожалению электрические нагрузки имеют больше в своем роде индуктивные компоненты, что отрицательно влияет на качество электроэнергии. Для выравнивания косинуса фи необходимо применение конденсаторных установок. Реализация данной задачи нашла вополощение в КТП с КУ.

КТП с КУ представляют собой КТП с автоматической установкой компенсации реактивной мощности и пульсаций и дает следующие преимущества:

  • Увеличение срока службы СТ и снижение сечения силовых проводников;
  • Сокращают потери электроэнергии в проводниках;
  • Увеличивают качество электроэнергии;
  • Увеличивают межремонтный интервал частотников;
  • Уменьшают объем потребеления электроэнергии.

Использование в КТП с КУ автоматических УКРМ дает возможность:

  • максимально увеличить коэффициент мощности;
  • Регулирование компенсации реактивной мощности в круглосуточном режиме;
  • Исключение человеческого фактора.
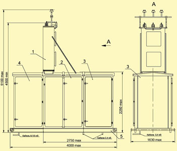
Техничекие характеристики КТП с КУ

Мощность до 400 кВа, мощность УКРМ до 160 кВар, до 6 отходящих линий. Габарит КТП с КУ 4,0*1,7*2,25. Размер КТП с КУ может изменяться в зависимости от технических требований. Цена КТП с КУ определяется по ОЛ. Опросный лист КТП с КУ предоставляется по запросу

Примечания КТП с КУ:

Мощность КРМ может увеличиваться, КРМ могут применяться с ручным регулированием.

Схема КТП с КУ, техническое описание КТП с КУ предоставляютс япосле отгрузки.

Гарантия на КТП с КУ производства "ЭП" не менее 3 лет.

Обратная связь