Столбовая трансформаторная подстанция. Цена СТП в Москве с доставкой по России.
?Быстрый вопрос в компанию Электропринцип. Мы перезвоним вам в ближайшее время.
Защита от автоматических сообщений
CAPTCHA
Введите слово на картинке*

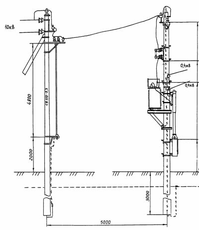
СТП - столбовая трансформаторная подстанция.

СТП - столбовая трансформаторная подстанция.

Типовое изделие. Комплектации СТП-16 кВа, СТП-25 кВа, СТП-40 кВа, СТП-63 кВа. Исполнение трехфазное для установки на одном столбе. В комплект СТП по пожеланию заказчика могут выходить: разрядники РВО, ограничители ОПН, разъединители РВЗ и РЛК, фидер уличного освещения. По умолчанию СТП производства имеют внутреннее освещение. Дополнительно с СТП могут поставляться АУКРМ и ШНО. Исполнение шкафа РУНН СТП может иметь оборудование с вынесенными приводами на фасад при необходимости.

Назначение СТП

СТП используются для электроснабжения небольших потребителей (до 63 кВа) в районах с умеренным климатом. Преимущественно в системах электроснабжения с воздушными линиями. СТП устанавливается на воздушной опоре (4.2.11 ПУЭ 7-е издание) и не предназначена для работы во взрывоопасной среде. Монтаж должен производится специализированными специалистами.

Преимущества СТП производства завода высоковольтного электрооборудования  "АртЭнерго"

  • приемлемая стоимость для КТП мощностью до 63 кВа;
  • быстрый и не сложный монтаж (в течении одного дня);
  • порошковая покраска всей конструкции;
  • возможность демонтажа и модернизации.

Столбовые ТП не предназначены для:

  • работы в исполнении  кабель кабель;
  • обслуживания в неблагоприятную погоду;
  • ввода питания со стороны низшего напряжения.

Описание СТП предоставляется по запросу. Габарит в транспортном контейнере 0,5*0,2*1,2 м. Транспортировка возможна в любом положении.

Комплектность СТП

Столбовая трансформаторная подстанция состоит: опора СТ, траверса РУВН, траверса РУНН, шкаф РУНН, опора ПКТ, опора ОПН. В комплекте поставляется: паспорт, комплект ключей, инструкция по монтажу, инструкция по эксплуатации. Цена СТП определяется по ОЛ. Опросный лист можно получить у сотрудников завода "АртЭнерго". 

Заказ СТП осуществляется любым удобным для Вас способом (по почте, по телефону) в любое время. Собственное производство СТП позволит нам сделать для Вас очень выгодное предложение. Заказать различные модификации столбовых трансформаторных подстанций по оптимальной цене можно, обратившись в нашу компанию.

Обратная связь